iQ Makelaars Feedbackcompany
9.5 10
252 reviews
iQ Makelaars Funda
9.5 10
 
TILBURG, Bilderdijkstraat 19
 

Bilderdijkstraat 19 TILBURG

Vraagprijs € 237.000,-
k.k.
Vraagprijs € 237.000,-
k.k.
Bilderdijkstraat 19 TILBURG
  • TypeTussenwoning
  • Woonoppervlakte72 m²
  • Perceelgrootte94 m²
  • Slaapkamers3
  • Aangeboden sinds20-08-2025
  • Beschikbaarheid In overleg
Vraag bezichtiging aan

Omschrijving

Wegens de vele bezichtigingsaanvragen, komt u momenteel eerst op de wachtlijst te staan.

Gezellige stadswoning nabij het centrum gelegen met een grote woonkamer, 2 ruime slaapkamers en een leuke stadstuin met overkapping en bergruimte. De woning is zeer gunstig gelegen nabij winkelgebied ‘Korvel’, de binnenstad, Kromhoutpark, gezellige eet- en drinkgelegenheden en uitvalswegen.

Bouwjaar: 1931
Woonoppervlakte: ca. 77 m2
Inhoud: ca. 295 m3
Perceeloppervlakte: 94 m²

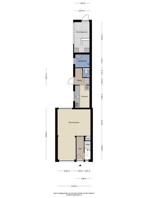
Indeling
Begane grond:
Hal/entree met trapopgang en trappenkast. De woonkamer met laminaatvloer en er is een vaste kast. In het verlengde van de woonkamer is de semi-open keuken gelegen. De keuken met onderkasten is voorzien van een gaskookplaat met oven en afzuigkap. De bijkeuken met voorzieningen voor de wasmachine, vaatwasser en de geiser. Toegang tot de badkamer en de tuin. De volledig betegelde badkamer is voorzien van een inloopdouche en badkamermeubel. Er is een separaat toilet.

Eerste verdieping:
Overloop met vaste trap richting de zolder en 2 slaapkamers. De slaapkamer aan de achterzijde waren voorheen 2 slaapkamers.

Tweede verdieping:
Middels een vaste trap is de ruime bergzolder met dakraam toegankelijk. Te gebruiken als logeerkamer of kantoorruimte.
Hier hangt de CV-combiketel die alleen is aangesloten voor de verwarming.

Tuin:
Gezellige stadstuin met terras en beplanting en een achterom. Er is tevens een gezellige overkapping waar je heerlijk kan genieten van de middag- en avondzon.

Algemeen:
* stadswoning met 2 slaapkamers
* gelegen nabij vele voorzieningen

Meer

Neem contact op

iQ Makelaars Kantoor Eindhoven
Michel Immink
Croy 7
5653 LC Eindhoven

T  040-3040400
E  Eindhoven@iQMakelaars.nl

Specificaties

Bouw

  • Soort Woningen
  • Type Tussenwoning
  • Bouwjaar 1931

Algemeen

  • Beschikbaarheid In overleg

Energie

  • Energielabel F
  • CV-ketel Combi
  • CV-ketel eigendom Ja
  • CV-ketel brandstof Gas
  • CV-ketel warmwater Ja
  • Aanwezige isolatie Dakisolatie, glasisolatie

Indeling

  • Slaapkamers 3
  • Tuin Ja
  • Tuin ligging Noordoost

Voorziening

  • Parkeerplaats Ja

Afmetingen

  • Woonoppervlakte 72 m²
  • Perceeloppervlakte 94 m²
  • Woninginhoud 295 m³
  • Tuin oppervlakte 32 m²
Meer

Afbeeldingen

 
 
 
 
 
 
 
 
 
 
 
 
 
 
 
 
 
 
 
 
 
 
 
 
 
 
 
 
 
 
 
 
 
 
 
 
 
 

Plattegrond

  Pand
  Pand
  Pand
  Pand
  Pand
  Pand

Vraag bezichtiging aan

Wat is jouw huis waard?

Gratis rapport iQ Makelaars Leadtool

Contact

iQ Makelaars Eindhoven
Croy 7
5653 LC Eindhoven

E: eindhoven@iqmakelaars.nl
T: +31 (0)40 - 30 40 400

+31 (0)40 - 30 40 400

 

Volg ons

 

Onze beoordelingen

Onze klanten beoordelen ons met een 9,3 / 10. Elke klant met een unieke ervaring.