iQ Makelaars Feedbackcompany
9.5 10
251 reviews
iQ Makelaars Funda
9 10
 
EINDHOVEN, Waterlinie 328
 

Waterlinie 328 EINDHOVEN

Vraagprijs € 650.000,-
k.k.
Vraagprijs € 650.000,-
k.k.
Waterlinie 328 EINDHOVEN
  • TypeTussenwoning
  • Woonoppervlakte139 m²
  • Perceelgrootte146 m²
  • Slaapkamers4
  • Aangeboden sinds09-10-2025
  • Beschikbaarheid Per direct
Vraag bezichtiging aan

Omschrijving

Waterlinie 328, Eindhoven – modern en energiezuinig gezinshuis

Dit moderne en energiezuinige gezinshuis in Meerhoven – Waterrijk biedt ca. 139 m²
wooncomfort met energielabel A en 10 zonnepanelen. Dankzij de speelse split-level
indeling, de woonkamer met 3,5 meter hoge plafonds en grote raampartijen voelt de
woning extra licht en ruimtelijk. Met vier slaapkamers, twee eigen parkeerplekken en een
onderhoudsvriendelijke tuin is dit het perfecte thuis voor een gezin dat ruimte en comfort
zoekt.

Indeling

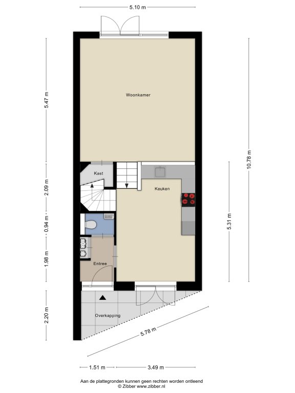
Begane grond
Entree met hal en toilet. Aan de voorzijde bevindt zich de moderne keuken, compleet met
inbouwapparatuur. Dankzij de ruime opzet is er volop plek om een gezellige eethoek te
creëren, met veel lichtinval door de grote ramen. De speelse split-level indeling geeft de
woning extra karakter: de woonkamer heeft een plafondhoogte van ca. 3,5 meter en grote
raampartijen, wat zorgt voor een bijzonder ruimtelijk gevoel. Vanuit hier heb je toegang tot
de tuin(ca. 28m2) met berging en twee eigen parkeerplaatsen. Deze is al voorbereid voor
eventuele plaatsing van een laadpaal. De trapopgang bevindt zich aan de zijkant van de
keuken en is daardoor mooi uit het zicht. Op de begane grond is bovendien een praktische
inpandige berging/trapkast aanwezig.

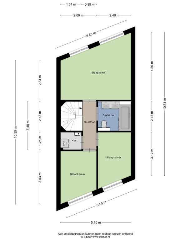
Eerste verdieping
Hier bevinden zich drie slaapkamers, waaronder een royale ouderslaapkamer van ca. 20m²
en twee slaapkamers van respectievelijk 9m². Alle kamers zijn voorzien van
vloerverwarming die apart regelbaar is. De moderne badkamer beschikt over een ligbad-
douchecombinatie, dubbele wastafel en toilet. Tegenover de badkamer ligt een ruime
technische ruimte (ca. 5 m²) met aansluitingen voor wasmachine en droger, de omvormer
van de zonnepanelen en de WTW-unit.

Tweede verdieping
De bovenste etage biedt verrassend veel extra leefruimte. Hier vind je een royale
slaapkamer van ca. 22 m², uitstekend geschikt als master bedroom of studio, en een ruime
overloop van ca. 10m², ideaal als werkplek, speelkamer of hobbyruimte. Ook op deze
verdieping is de vloerverwarming per kamer instelbaar.

Bijzonderheden
- Woonoppervlakte ca. 139 m², bruto inhoud ca. 519 m³;
- Energielabel A;
- 10 zonnepanelen, waarvan 9 op het bovenste platte dak;
- Speelse split-level indeling met woonkamer van 3,5 meter hoog en grote raampartijen;
- Volledige vloerverwarming (hoofdverwarming), per kamer regelbaar op eerste en tweede
verdieping;
- Badkamer met zowel bad als douche;
- Onderhoudsvriendelijke tuin;
- Twee eigen parkeerplaatsen + vrij parkeren in de straat;
- Vrijstaande berging ca. 6 m²;
- Gelegen in kindvriendelijke wijk Meerhoven – Waterrijk, met veel groen, waterpartijen en
uitstekende verbindingen naar ASML, High Tech Campus en Eindhoven Airport.

Meer

Neem contact op

iQ Makelaars Kantoor Eindhoven
Hugo Veldhuis
Croy 7
5653 LC Eindhoven

T  040-3040400
E  Eindhoven@iQMakelaars.nl

Specificaties

Bouw

  • Soort Woningen
  • Type Tussenwoning
  • Bouwjaar 2020

Algemeen

  • Beschikbaarheid Per direct

Energie

  • Energielabel A
  • Aanwezige isolatie Dakisolatie, spouwisolatie, muurisolatie, vloerisolatie, glasisolatie

Indeling

  • Slaapkamers 4
  • Tuin Ja
  • Tuin ligging Zuidoost

Voorziening

  • Parkeerplaats Ja
  • Zonnepanelen Ja

Afmetingen

  • Woonoppervlakte 139 m²
  • Perceeloppervlakte 146 m²
  • Woninginhoud 519 m³
  • Tuin oppervlakte 50 m²
Meer

Plattegrond

  Pand
  Pand
  Pand
  Pand

Vraag bezichtiging aan

Wat is jouw huis waard?

Gratis rapport iQ Makelaars Leadtool

Contact

iQ Makelaars Eindhoven
Croy 7
5653 LC Eindhoven

E: eindhoven@iqmakelaars.nl
T: +31 (0)40 - 30 40 400

+31 (0)40 - 30 40 400

 

Volg ons

 

Onze beoordelingen

Onze klanten beoordelen ons met een 9,3 / 10. Elke klant met een unieke ervaring.