iQ Makelaars Feedbackcompany
9.5 10
252 reviews
iQ Makelaars Funda
9.5 10
 
EINDHOVEN, Gerard Davidstraat 16
 

Gerard Davidstraat 16 EINDHOVEN

Vraagprijs € 475.000,-
k.k.
Vraagprijs € 475.000,-
k.k.
Gerard Davidstraat 16 EINDHOVEN
  • TypeHoekwoning
  • Woonoppervlakte116 m²
  • Perceelgrootte224 m²
  • Slaapkamers4
  • Aangeboden sinds09-10-2025
  • Beschikbaarheid In overleg
Vraag bezichtiging aan

Omschrijving

Wonen in een instapklaar hoekhuis met energiezuinige voorzieningen, moderne luxe en volop buitenruimte?

Deze ruime hoekwoning (116 m²) beschikt over 16 zonnepanelen, 4 airco-units verdeeld over meerdere verdiepingen, een moderne keuken met Amerikaanse koelkast (ter overname) én een royale groene achtertuin met schuur, overkapping en achterom. Gelegen aan een kindvriendelijk plein met volop gratis parkeergelegenheid, is dit het ideale thuis voor wie comfort en duurzaamheid wil combineren.

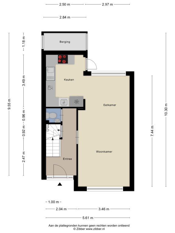
Begane grond

Voortuin
Een verzorgde voortuin met ruimte voor fraaie beplanting zorgt voor een warme en uitnodigende entree. De ligging op de hoek en het vrije uitzicht over het plein maken dit een fijne plek om thuis te komen.

Hal
Via de hal, die keurig is afgewerkt, bereikt u alle vertrekken op de begane grond. Hier vindt u de meterkast en een modern toilet.

Toilet
Netjes en smaakvol betegeld, met fonteintje passend bij de verzorgde afwerking van de woning.

Woonkamer
Een ruime, lichte woonkamer met grote ramen die zorgen voor volop daglicht. Er is voldoende plaats voor zowel een royale zithoek als een grote eettafel. De inverter-airconditioning(koud en warm) biedt aangename verkoeling in de zomermaanden. De vloer is stijlvol en onderhoudsvriendelijk afgewerkt, waardoor de ruimte een moderne uitstraling krijgt.

Keuken
De keuken is recent vernieuwd en voorzien van moderne apparatuur, waaronder een inductiekookplaat, ingebouwde oven, magnetron, vaatwasser én een moderne Amerikaanse koelkast met icecrusher (ter overname). De wit afgewerkte kastfronten in combinatie met houten details geven de keuken een eigentijdse en warme uitstraling. Dankzij de praktische indeling is koken hier een waar plezier.

Achtertuin
De royale achtertuin(ongeveer 51m2) is half betegeld en deels voorzien van een groen grasveld. Aan de zijkanten is ruimte voor fraaie beplanting, waardoor u eenvoudig een gezellige en groene sfeer kunt creëren. Naast de tuiningang is ruimte voor een Kleine berging. Achterin de tuin staat een praktische schuur voor opslag en een overkapping waar u beschut kunt genieten van het buitenleven, ongeacht het weer. Dankzij de brede steeg aan de zijkant is de tuin ook eenvoudig bereikbaar via de achterom.

Eerste verdieping

Overloop
Een lichte overloop met een verzorgde laminaatvloer biedt toegang tot de slaapkamers, de badkamer en wasruimte.

Slaapkamer 1
Royale slaapkamer aan de straatzijde, voorzien van airconditioning en veel natuurlijk licht. Er is genoeg ruimte voor een groot bed en een kledingkast.

Slaapkamer 2
Eveneens ruim van formaat, met grote ramen, airconditioning en geschikt voor een tweepersoonsbed.

Badkamer
Fraai afgewerkt met moderne tegels en voorzien van een ligbad, aparte douche, toilet en wastafel. Vanuit de badkamer heeft u toegang tot een balkon.

Balkon
Een fijne plek om in de ochtendzon te genieten, liggend op het westen. Of om uw was te drogen met mooi weer. Ongeveer 4m2 groot.

Wasruimte
Praktische ruimte met aansluiting voor wasmachine en droger, en voldoende plek voor het opbergen van huishoudelijke spullen.

Tweede verdieping

Overloop
Ruim en voorzien van airconditioning.

Slaapkamer 3
Grote en lichte kamer, ideaal als extra slaapkamer of hobbyruimte.

Slaapkamer 4 / Werkkamer
Perfect als thuiskantoor of logeerkamer. Hier vindt u ook de CV-installatie en de omvormer van de zonnepanelen.

Berging
Extra bergruimte voor koffers, seizoensspullen en overige opslag.

Pluspunten van deze woning
-Instapklaar en uitstekend onderhouden;
-16 zonnepanelen: 10 op de schuur en 6 op de dakkapel (energiezuinig);
-Vier ruime slaapkamers, wasruimte en inpandige berging;
-4 Airco-units verdeeld over alle verdiepingen;
-Moderne keuken met alle faciliteiten;
-Royale achtertuin met berging, stenen schuur, overkapping en achterom via brede steeg;
-Kindvriendelijke ligging aan een plein;
-Gratis parkeergelegenheid direct voor de deur.

Meer

Neem contact op

iQ Makelaars Kantoor Eindhoven
Hugo Veldhuis
Croy 7
5653 LC Eindhoven

T  040-3040400
E  Eindhoven@iQMakelaars.nl

Specificaties

Bouw

  • Soort Woningen
  • Type Hoekwoning
  • Bouwjaar 1955

Algemeen

  • Beschikbaarheid In overleg

Energie

  • Energielabel B
  • CV-ketel Combi
  • CV-ketel eigendom Ja
  • CV-ketel brandstof Gas
  • CV-ketel bouwjaar 2011
  • CV-ketel warmwater Ja
  • Aanwezige isolatie Dakisolatie, muurisolatie, glasisolatie

Indeling

  • Slaapkamers 4
  • Tuin Ja
  • Balkon Ja

Voorziening

  • Airco Ja
  • Zonnepanelen Ja

Afmetingen

  • Woonoppervlakte 116 m²
  • Perceeloppervlakte 224 m²
  • Woninginhoud 421 m³
  • Tuin oppervlakte 51 m²
  • Balkon oppervlakte 1 m²
Meer

Afbeeldingen

 
 
 
 
 
 
 
 
 
 
 
 
 
 
 
 
 
 
 
 
 
 
 
 
 
 
 
 
 
 
 
 
 
 

Plattegrond

  Pand
  Pand
  Pand
  Pand
  Pand

Vraag bezichtiging aan

Vergelijkbaar aanbod

Verkocht
EINDHOVEN
Schultinghstraat 51
   € 475.000,- k.k.
Details
Verkocht OVB
EINDHOVEN
Nieuwe Fellenoord 62
   € 485.000,- k.k.
Details

Wat is jouw huis waard?

Gratis rapport iQ Makelaars Leadtool

Contact

iQ Makelaars Eindhoven
Croy 7
5653 LC Eindhoven

E: eindhoven@iqmakelaars.nl
T: +31 (0)40 - 30 40 400

+31 (0)40 - 30 40 400

 

Volg ons

 

Onze beoordelingen

Onze klanten beoordelen ons met een 9,3 / 10. Elke klant met een unieke ervaring.